Skip To Content

Lot 602 Stonecrest Ave

CROSSVILLE, TN 38571
  • $720,000
  • STATUS: Active
  • ON SITE: 306 Days
  • MLS #: 233957
UPDATED: 55 min ago
$720,000
  • 0
    BEDS
  • 53.39
    ACRES
  • 0
    BATHS
  • 0
    1/2 BATHS
Neighborhood:
Type:
Vacant Land / Lots
County:

School Ratings & Info

Description

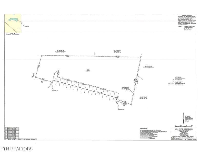
53.39 acres surveyed into lots and soil tested, with a road roughed in behind Stonecrest Subdivision. There is currently 18.49 acres in the middle of 71.88 acres under contract. Upon closing of the 18.49 acres, the other tracts will be listed separately. Water and electric at the road (Stonecrest Avenue). See map (20.64 acres has been surveyed off the right side of the property). There is an ingress/egress easement across the property to access Map 060 Parcel 005.01. Call today for more information!!

Monthly Payment Calculator



© 2025 Upper Cumberland Association of Realtors. All rights reserved. IDX information is provided exclusively for consumers' personal, non-commercial use and may not be used for any purpose other than to identify prospective properties consumers may be interested in purchasing. Information is deemed reliable but is not guaranteed accurate by the MLS or The Huffaker Group of Keller Williams. Data last updated: 2025-11-13T07:52:48.84.
www.thehuffakergroup.com/homes/159340841
Print Image

Lot 602 Stonecrest Ave CROSSVILLE, TN 38571

  • Price: $720,000
  • Status: Active
  • On Site: 306 Days
  • Updated: 55 min ago
  • MLS #: 233957
0
Beds
0
Baths
0
½ Baths
53.39
Acres
Neighborhood:
None
County:
Cumberland
Area:
Cumberland Co W, Tn
Property Description
53.39 acres surveyed into lots and soil tested, with a road roughed in behind Stonecrest Subdivision. There is currently 18.49 acres in the middle of 71.88 acres under contract. Upon closing of the 18.49 acres, the other tracts will be listed separately. Water and electric at the road (Stonecrest Avenue). See map (20.64 acres has been surveyed off the right side of the property). There is an ingress/egress easement across the property to access Map 060 Parcel 005.01. Call today for more information!!
Property Features

Access County Road City Taxes 0.00 County Taxes 925.00 Easements Yes Electric Available Extras Other-See Remarks For Sale Rent S Lot Description Irregular LotHorse PropertyWoodedFarm Lot Dimensions 53.39 Acres Possible Use Single FamilyFarm Property Type Undeveloped Reox Not Applicable Sewer Septic Needed Topography FlatRolling Views Other Water Supply PublicAvailableUtility Water Type On Property Creek

Listing provided courtesy of Pioneer Realty: 9314848431.


© 2025 Upper Cumberland Association of Realtors. All rights reserved. IDX information is provided exclusively for consumers' personal, non-commercial use and may not be used for any purpose other than to identify prospective properties consumers may be interested in purchasing. Information is deemed reliable but is not guaranteed accurate by the MLS or The Huffaker Group of Keller Williams. Data last updated: 2025-11-13T07:52:48.84.
 
https://bt-photos.global.ssl.fastly.net/cumberland/orig_boomver_1_233957-2.jpg https://bt-photos.global.ssl.fastly.net/cumberland/orig_boomver_1_233957-2.jpg
Logo
The Huffaker Group of Keller Williams
2031 N. Mt. Juliet Rd Suite 101
Mt. Juliet TN, 37122