Skip To Content

412 Woodland Dr

Clinton, TN 37716
  • $410,000
  • STATUS: Active
  • ON SITE: 99 Days
  • MLS #: RTC3040046
UPDATED: 56 min ago
$410,000
  • 4
    BEDS
  • 0.43
    ACRES
  • 2
    BATHS
  • 0
    1/2 BATHS
  • 2,270
    SQFT
  • $181
    $/SQFT
Neighborhood:
Type:
Single-Family Home
Built:
1957
County:

School Information

Elementary School:
Middle School:
High School:

Description

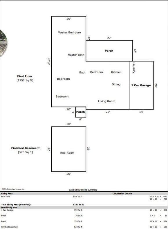
Welcome to your Tennessee retreat! Sitting on nearly half an acre, this ranch-style home offers 1,740 sq ft on the main level plus a partially finished 520 sq ft basement, giving you space for everyone and everything. With 4 bedrooms, 2 bathrooms, and multiple outdoor areas — a porch, deck, and patio — there’s room to relax, gather, and enjoy the good life. The owners have put real love into this home’s design, blending rustic style with modern comfort. Inside, you’ll find corrugated steel accent walls and hand-burnt custom trim that make the space feel warm and one-of-a-kind. The living room features an electric fireplace with a custom wood mantle, perfect for cozy nights in. Downstairs, a large family room with a wood-burning fireplace is ready for movie nights or game days. The primary bedroom offers two big closets and opens directly onto a private porch — your own peaceful spot to enjoy morning coffee. There’s storage galore here too, including a large walk-in encapsulated crawl space, a huge attic above the garage, and plenty of closet space throughout. Step outside and you’ll find a big, flat, fenced-in backyard that’s truly something special. The sellers planted peach and nectarine trees, lemon and lime trees, elderberry bushes, and even created a small wildflower path along the fence line — a perfect touch of country beauty right in the city. Located in Clinton, Tennessee, you’re close to parks, schools, and local shops, and just a quick drive from Knoxville for work or weekend fun. Enjoy East Tennessee living at its finest — a mix of comfort, creativity, and charm in one unforgettable home. Things that convey with the home: pool & all components, TV's and all appliances (no dishwasher currently but the hookups are there for one & all appliances & HVAC (HVAC has warranty) are less then a year old.) Security system and cameras DO NOT convey with the house.

Monthly Payment Calculator



Realtracs Solutions logoProperties marked with the IDX logo are provided courtesy of the RealTracs Internet Data Exchange Program. Some or all of the listings may not belong to the firm whose website is being visited (The Huffaker Group of Keller Williams, 615-208-3285). IDX information © 2026 MTRMLS, Inc. Information is believed to be accurate but not guaranteed by the MLS or The Huffaker Group of Keller Williams. IDX information is provided exclusively for consumers' personal, non-commercial use and may not be used for any purpose other than to identify prospective properties consumers may be interested in purchasing. Data last updated 2026-02-13T17:12:40.827.

Based on information submitted to the MLS GRID as of 2026-02-13T17:12:40.827. All data is obtained from various sources and may not have been verified by broker or MLS GRID. Supplied Open House Information is subject to change without notice. All information should be independently reviewed and verified for accuracy. Properties may or may not be listed by the office/agent presenting the information.
Click here for MLS GRID DMCA Notice
www.thehuffakergroup.com/homes/169646907
Print Image

412 Woodland Dr Clinton, TN 37716

  • Price: $410,000
  • Status: Active
  • On Site: 99 Days
  • Updated: 56 min ago
  • MLS #: RTC3040046
4
Beds
2
Baths
0
½ Baths
0.43
Acres
2,270
SQFT
$181
$/SQFT
1957
Built
Neighborhood:
Clinch View Ext Two
County:
Anderson
Elementary School:
Clinton Elementary
Middle School:
Clinton Middle School
High School:
Clinton High School
Property Description
Welcome to your Tennessee retreat! Sitting on nearly half an acre, this ranch-style home offers 1,740 sq ft on the main level plus a partially finished 520 sq ft basement, giving you space for everyone and everything. With 4 bedrooms, 2 bathrooms, and multiple outdoor areas — a porch, deck, and patio — there’s room to relax, gather, and enjoy the good life. The owners have put real love into this home’s design, blending rustic style with modern comfort. Inside, you’ll find corrugated steel accent walls and hand-burnt custom trim that make the space feel warm and one-of-a-kind. The living room features an electric fireplace with a custom wood mantle, perfect for cozy nights in. Downstairs, a large family room with a wood-burning fireplace is ready for movie nights or game days. The primary bedroom offers two big closets and opens directly onto a private porch — your own peaceful spot to enjoy morning coffee. There’s storage galore here too, including a large walk-in encapsulated crawl space, a huge attic above the garage, and plenty of closet space throughout. Step outside and you’ll find a big, flat, fenced-in backyard that’s truly something special. The sellers planted peach and nectarine trees, lemon and lime trees, elderberry bushes, and even created a small wildflower path along the fence line — a perfect touch of country beauty right in the city. Located in Clinton, Tennessee, you’re close to parks, schools, and local shops, and just a quick drive from Knoxville for work or weekend fun. Enjoy East Tennessee living at its finest — a mix of comfort, creativity, and charm in one unforgettable home. Things that convey with the home: pool & all components, TV's and all appliances (no dishwasher currently but the hookups are there for one & all appliances & HVAC (HVAC has warranty) are less then a year old.) Security system and cameras DO NOT convey with the house.
Exterior Features

Architectural Style Ranch Attached Garage YN Yes Construction Materials Vinyl Siding Covered Spaces 1 Garage YN Yes Levels Two Lot Size Dimensions 113 X220 Parking Features Garage Faces Front Parking Total 1 Patio And Porch Features DeckPatioPorch Roof Asphalt View YN No Waterfront YN No

Interior Features

Above Grade Finished Area 1750 Appliances OvenRangeDryerRefrigeratorStainless Steel Appliance(s)Washer Basement Finished Below Grade Finished Area 520 Cooling Central Air Cooling YN Yes Fireplace YN Yes Fireplaces Total 1 Flooring Wood Heating Central Heating YN Yes Main Level Bedrooms 4 Rooms Bedroom 1 (19x18) Bedroom 2 (14x11) Bedroom 3 (14x11) Recreation Room (20x18 Basement Level) Dining Room (10x6) Kitchen (10x18 Eat-in Kitchen) Living Room (20x14) Other Room (9x11 Office)

Property Features

Association YN No Building Area Total 2270 Buyer Financing ConventionalFHAOtherVA Lot Size Area 0.43 New Construction YN No Pool Private YN No Property Attached YN No Property Sub Type Single Family Residence Senior Community YN No Sewer Public Sewer Special Listing Conditions Standard Stories 1 Tax Annual Amount 1513 Water Source Public Year Built Details Existing

Realtracs Solutions logo Offered by Grateful Acres Realty: . Copyright 2026 RealTracs, Inc. Information Is Believed To Be Accurate But Not Guaranteed. Listings courtesy of Realtracs MLS as distributed by MLS GRID.


Realtracs Solutions logoProperties marked with the IDX logo are provided courtesy of the RealTracs Internet Data Exchange Program. Some or all of the listings may not belong to the firm whose website is being visited (The Huffaker Group of Keller Williams, 615-208-3285). IDX information © 2026 MTRMLS, Inc. Information is believed to be accurate but not guaranteed by the MLS or The Huffaker Group of Keller Williams. IDX information is provided exclusively for consumers' personal, non-commercial use and may not be used for any purpose other than to identify prospective properties consumers may be interested in purchasing. Data last updated 2026-02-13T17:12:40.827.

Based on information submitted to the MLS GRID as of 2026-02-13T17:12:40.827. All data is obtained from various sources and may not have been verified by broker or MLS GRID. Supplied Open House Information is subject to change without notice. All information should be independently reviewed and verified for accuracy. Properties may or may not be listed by the office/agent presenting the information.
Click here for MLS GRID DMCA Notice
 
https://bt-photos.global.ssl.fastly.net/nashville/1280_boomver_1_RTC3040046-1.jpg https://bt-photos.global.ssl.fastly.net/nashville/1280_boomver_1_RTC3040046-1.jpg
Logo
The Huffaker Group of Keller Williams
2031 N. Mt. Juliet Rd Suite 101
Mt. Juliet TN, 37122