Skip To Content

20 Lucile St

Nashville, TN 37207
  • $2,190,000
  • STATUS: Active
  • ON SITE: 60 Days
  • MLS #: RTC3093281
UPDATED: 87 min ago
$2,190,000
  • 0
    BEDS
  • 0.62
    ACRES
  • 0
    BATHS
  • 0
    1/2 BATHS
Neighborhood:
Type:
Vacant Land / Lots
County:

School Information

Elementary School:
Middle School:

Description

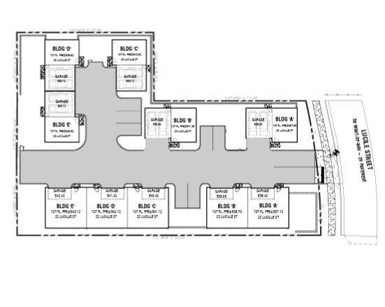
SVN | Accel Commercial Real Estate is pleased to present 20–22 Lucile Street, a boutique 10-unit luxury residential development opportunity in a premier Nashville location with direct Downtown skyline views. This elevated site offers a rare opportunity to deliver a design-forward, high-end product in an established neighborhood. The planned 10-unit project is ideally positioned to capture strong buyer demand for luxury residences that combine skyline views, modern architecture, and immediate access to Nashville’s core employment and entertainment districts. Located just minutes from Downtown, Midtown, and The Gulch, the property benefits from exceptional connectivity while maintaining a private, residential setting. Surrounding high-end infill and continued neighborhood appreciation support premium pricing and long-term value creation. This offering is well suited for developers or investors seeking a small-scale, high-margin luxury project in one of Nashville’s most desirable urban submarkets. 20–22 Lucile Street represents a rare opportunity to execute a differentiated luxury development with views, proximity, and limited competitive supply. 10 unit luxury development opportunity Prime location in thriving Nashville area Downtown Nashville skyline views Civil work and preliminary architectural complete Zoned RM20A Seller is working on STR eligibility approval

Monthly Payment Calculator



Realtracs Solutions logoProperties marked with the IDX logo are provided courtesy of the RealTracs Internet Data Exchange Program. Some or all of the listings may not belong to the firm whose website is being visited (The Huffaker Group of Keller Williams, 615-208-3285). IDX information © 2026 MTRMLS, Inc. Information is believed to be accurate but not guaranteed by the MLS or The Huffaker Group of Keller Williams. IDX information is provided exclusively for consumers' personal, non-commercial use and may not be used for any purpose other than to identify prospective properties consumers may be interested in purchasing. Data last updated 2026-03-16T13:07:56.31.

Based on information submitted to the MLS GRID as of 2026-03-16T13:07:56.31. All data is obtained from various sources and may not have been verified by broker or MLS GRID. Supplied Open House Information is subject to change without notice. All information should be independently reviewed and verified for accuracy. Properties may or may not be listed by the office/agent presenting the information.
Click here for MLS GRID DMCA Notice
www.thehuffakergroup.com/homes/172110778
Print Image

20 Lucile St Nashville, TN 37207

  • Price: $2,190,000
  • Status: Active
  • On Site: 60 Days
  • Updated: 87 min ago
  • MLS #: RTC3093281
0
Beds
0
Baths
0
½ Baths
0.62
Acres
Neighborhood:
Twenty Lucile Street
County:
Davidson
Elementary School:
Shwab Elementary
Middle School:
Jere Baxter Middle
High School:
Maplewood Comp High School
Property Description
SVN | Accel Commercial Real Estate is pleased to present 20–22 Lucile Street, a boutique 10-unit luxury residential development opportunity in a premier Nashville location with direct Downtown skyline views. This elevated site offers a rare opportunity to deliver a design-forward, high-end product in an established neighborhood. The planned 10-unit project is ideally positioned to capture strong buyer demand for luxury residences that combine skyline views, modern architecture, and immediate access to Nashville’s core employment and entertainment districts. Located just minutes from Downtown, Midtown, and The Gulch, the property benefits from exceptional connectivity while maintaining a private, residential setting. Surrounding high-end infill and continued neighborhood appreciation support premium pricing and long-term value creation. This offering is well suited for developers or investors seeking a small-scale, high-margin luxury project in one of Nashville’s most desirable urban submarkets. 20–22 Lucile Street represents a rare opportunity to execute a differentiated luxury development with views, proximity, and limited competitive supply. 10 unit luxury development opportunity Prime location in thriving Nashville area Downtown Nashville skyline views Civil work and preliminary architectural complete Zoned RM20A Seller is working on STR eligibility approval
Exterior Features

Lot Features Level Parking Total 0 Road Frontage Type City Street Road Surface Type DirtGravel Topography Level View YN No Waterfront YN No

Interior Features

Cooling YN No Heating YN No

Property Features

Association YN No Building Area Total 0 Inclusions Land Only Lot Size Area 0.62 Pool Private YN No Property Attached YN No Senior Community YN No Special Listing Conditions Standard Tax Annual Amount 911 Zoning Rm20-A

Realtracs Solutions logo Offered by SVN Accel Commercial Real Estate: . Copyright 2026 RealTracs, Inc. Information Is Believed To Be Accurate But Not Guaranteed. Listings courtesy of Realtracs MLS as distributed by MLS GRID.


Realtracs Solutions logoProperties marked with the IDX logo are provided courtesy of the RealTracs Internet Data Exchange Program. Some or all of the listings may not belong to the firm whose website is being visited (The Huffaker Group of Keller Williams, 615-208-3285). IDX information © 2026 MTRMLS, Inc. Information is believed to be accurate but not guaranteed by the MLS or The Huffaker Group of Keller Williams. IDX information is provided exclusively for consumers' personal, non-commercial use and may not be used for any purpose other than to identify prospective properties consumers may be interested in purchasing. Data last updated 2026-03-16T13:07:56.31.

Based on information submitted to the MLS GRID as of 2026-03-16T13:07:56.31. All data is obtained from various sources and may not have been verified by broker or MLS GRID. Supplied Open House Information is subject to change without notice. All information should be independently reviewed and verified for accuracy. Properties may or may not be listed by the office/agent presenting the information.
Click here for MLS GRID DMCA Notice
 
https://bt-photos.global.ssl.fastly.net/nashville/1280_boomver_1_RTC3093281-1.jpg https://bt-photos.global.ssl.fastly.net/nashville/1280_boomver_1_RTC3093281-1.jpg https://bt-photos.global.ssl.fastly.net/nashville/1280_boomver_1_RTC3093281-1.jpg
Logo
The Huffaker Group of Keller Williams
2031 N. Mt. Juliet Rd Suite 101
Mt. Juliet TN, 37122